Gå til: Plantegninger | Fasade | Kontaktskjema
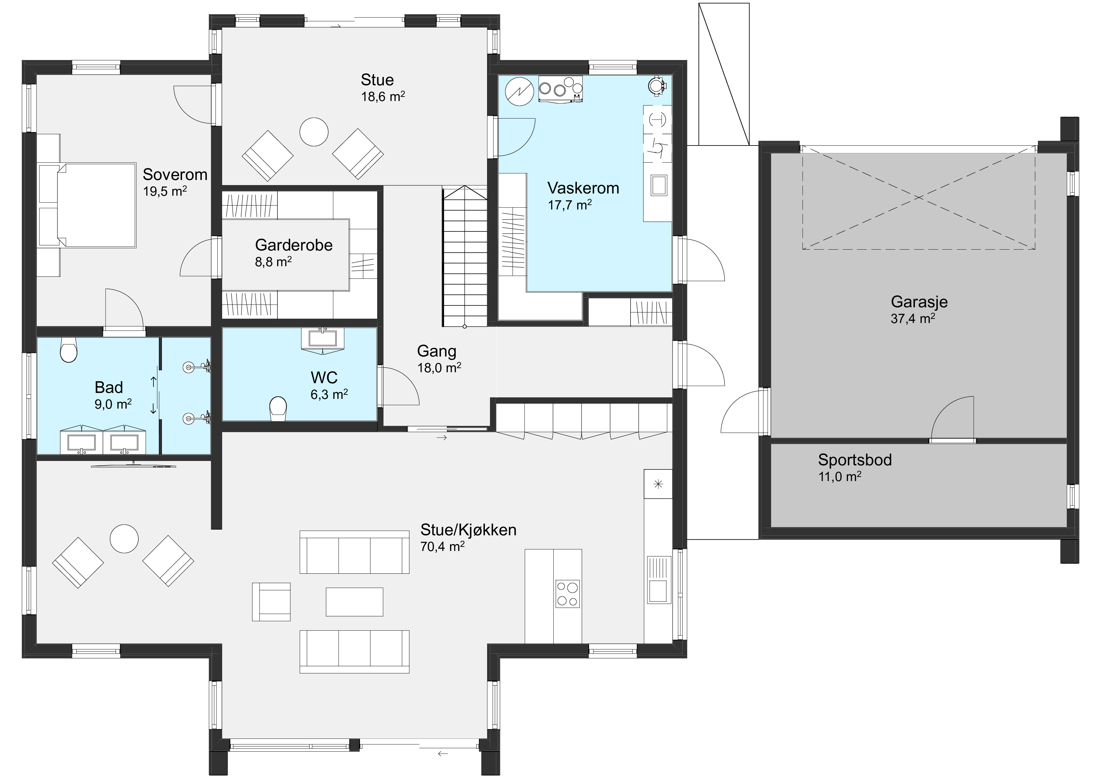
232 – AMARANTE
MODERNE OG STILFULL
Amarante er en romslig villa med moderne linjer og en stor balkong. Med sine store vindusflater og åpne oppholdsarealer, får du rik tilgang på lys og luft.
Med sine hele 403 m² har Amarante alt en familie kan ønske seg. Fem soverom, tre stuer i tillegg til en åpen stue- og kjøkkenløsning på 70 m², praktiske løsninger og gode oppbevaringsmuligheter, skaper et hjem med rikelig plass til både hverdag og fest, familieliv og rolige soner.
Her er det god plass til fellesskap, samtidig som planløsningen gir mulighet for privatliv når det trengs.
TEKNISK DATA
ØNSKER DU MER INFORMASJON?
FYLL UT SKJEMAET, SÅ KONTAKTER VI DEG FOR EN HYGGELIG BOLIGPRAT
ARKITEKT
ALT KAN TILPASSES FOR Å IMØTEKOMME DERES ØNSKER OG BEHOV
Fordelene med å bygge et helt nytt hus, er at du kan få det akkurat slik som du vil. Trolig finner du en husmodell i vår katalog som kan passe, men kanskje ønsker du å tilpasse boligen etter egne ønsker og behov.
Vi vil gjøre vårt ytterste for at du skal bli fornøyd, og hjelper deg hele veien fra idé til ferdig bolig. Vi har fagkunnskap og gir gode råd for at du skal få bygget en bolig som passer deg helt perfekt.»







